
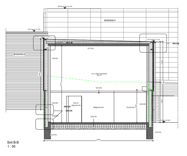
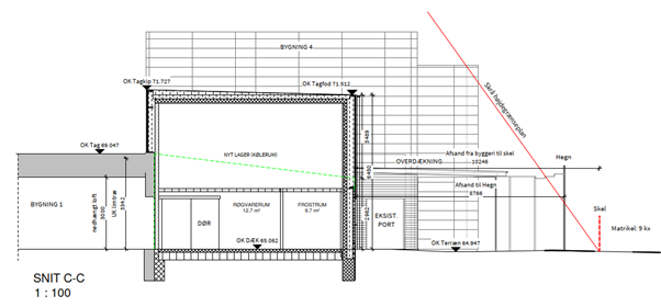
Projektet omhandler en udvidelse til SuperBrugsen i Hedensteds lager- og kølefaciliteter. Den eksisterende overdækning, skur og ferskvaremodtagelse/kølerum ombygges og udvides, og den nye tilbygning vil indeholde ferskvaremodtagelse/kølerum med et røgvarerum.
De bærende vægge vil blive udført som betonbagvægselementer med en formur af tegl som en “base” nederst, samt en ophængt træskelletvæg med stålpladebeklædning. De nye betonvægge planlægges opført på eget fundament op ad de eksisterende vægge, og de lette træskelletvægge foreslås ophængt over de eksisterende bygningsafsnit, båret af betonbagvæggen. Taget planlægges udført som en uventileret træspærskonstruktion med tagpap.

Projektdetaljer
- Kategori: Renovering og transformation
- Bygherre: Hedensted SuperBrugsen
- Lokation: Bytorvet 30, Hedensted
- Omfang: ca. 141m2
- Ydelse: Konstruktioner
- Arkitekt: Linjen Arkitekter A/S
- Tidsperiode: 2024





